


Stage 1 COMPLETE
Appraisal / briefing / sketch proposal
Through this stage of the project we have been researching, gathering data and looking at initial designs. We have also talked to the community about their ideas through our consultation sessions with our architect, Alexa. Our Project Group have been working lots behind the scenes to produce a Needs Analysis, to ask for feedback from the wider Morley community through a questionnaire and discussing initial designs provided for us by Pearce Bottomley Architects.
Stage 2 COMPLETE
Detailed proposals / planning / fundraising
Fundraising is well underway and we have already started seeing members of the community do some incredible things to raise money for the project. Morley Everest was one of these fundraising highlights, which raised over £20,000! Our plans have now been submitted for approval for planning permission, which means we're at a very exciting stage of the project.
As we await the outcome from the planning application, we are starting to think more in detail about the design e.g. choosing flooring for some of the main areas.
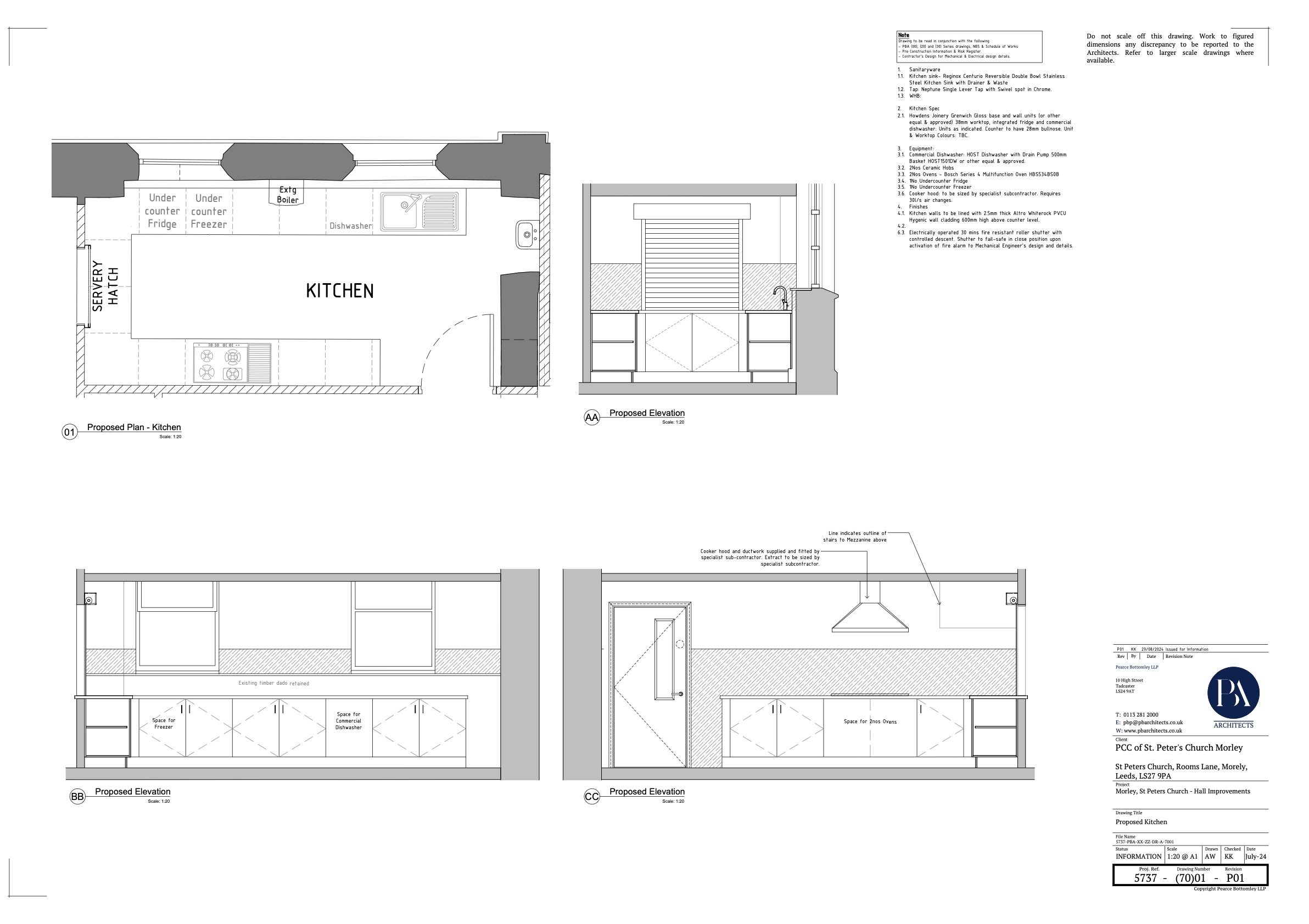
PLANS:
These are our most up to date plans 09/24
Stage 3 COMPLETE
Final proposals / building regulations approved
There has been lots going on behind the scenes with the project. In this stage of the project we have been preparing and submitting the planning application, and there have been other analysis happening in the building e.g. we have met with a structural engineer.
We have continued to be fundraising through individual efforts and one-off events such as our Quiz night and Christmas Craft Fair.
Exciting news 6/11/24

Stage 4 LIVE
Production information / tender
Whilst we are preparing everything behind the scenes ready for tender, our professional fundraisers are busy applying for grants to provide us with the full amount that we need to pay for the project.
Over 2024 we had the target of raising a £75,000 community fundraising total. We are delighted to announce that we achieved that! Thank you to our Morley Heroes who contributed to our fundraising efforts.
Stage 5
Mobilisation / construction to Practical Completion
Stage 6
After Practical Completion
Please do keep visiting this page as we update you on the building project's progress and the various events we have coming up!